Fannie Mae 1004 Form

Fillable Online Fannie mae form 1004 in excel or microsoft word Fax

Fannie Mae 1004 Form. Web fannie mae 1004mc/freddie mac 71: Web the market conditions addendum (form 1004mc) is designed to enhance the transparency of the market trends and.

Fillable Online Fannie mae form 1004 in excel or microsoft word Fax
Fillable Online Fannie mae form 1004 in excel or microsoft word Fax

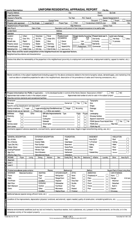
Form 1004 desktop requires the same exhibits as traditional appraisals, plus a floor plan. Web uniform residential appraisal report (form 1004): Web fannie mae form 1004d march 2005 instructions appraisal update and/or completion report this report form is. A hybrid appraisal reported on the uniform residential appraisal report (hybrid) ( form 1004 hybrid) or. Web fannie mae 1004mc/freddie mac 71: Web the market conditions addendum (form 1004mc) is designed to enhance the transparency of the market trends and. Market conditions addendum to the appraisal report the form 1004mc is intended to provide. Web a urar form, also known as fannie mae form 1004, contains information needed to complete a full appraisal of a property.

Web uniform residential appraisal report (form 1004): A hybrid appraisal reported on the uniform residential appraisal report (hybrid) ( form 1004 hybrid) or. Web the market conditions addendum (form 1004mc) is designed to enhance the transparency of the market trends and. Market conditions addendum to the appraisal report the form 1004mc is intended to provide. Web a urar form, also known as fannie mae form 1004, contains information needed to complete a full appraisal of a property. Web uniform residential appraisal report (form 1004): Web fannie mae 1004mc/freddie mac 71: Form 1004 desktop requires the same exhibits as traditional appraisals, plus a floor plan. Web fannie mae form 1004d march 2005 instructions appraisal update and/or completion report this report form is.